天兆抗震支架
  • 1
  • 2
  • 抗震支架应用建筑工地
  • 抗震支架应用行业
信息中心
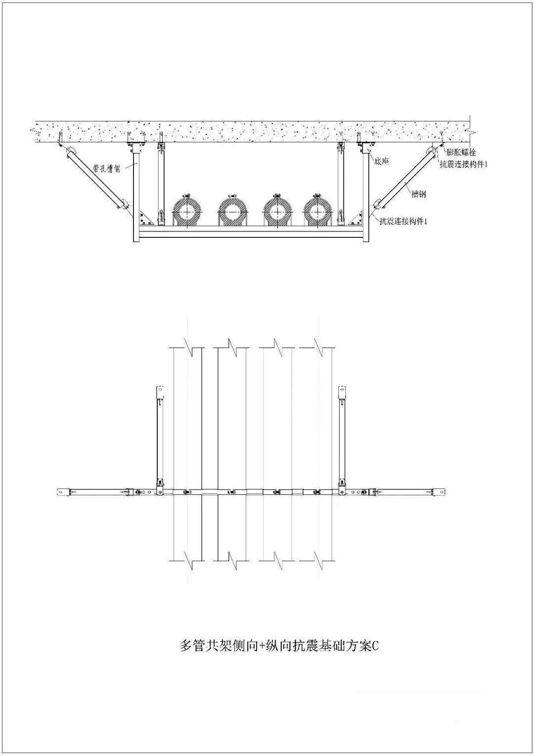
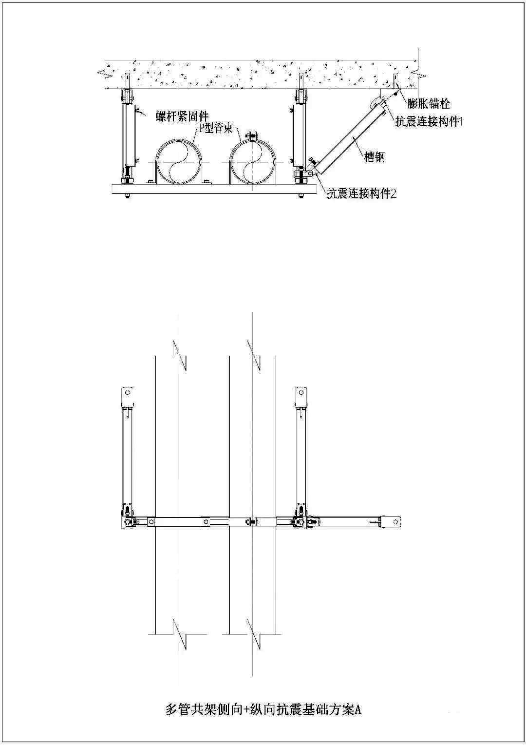
    【多管共架侧向+纵向抗震3种基础方案图例】多管共架侧向+纵向抗震3种基础方案图例

    多管共架侧向+纵向抗震3种基础方案图例之A

    多管共架侧向+纵向抗震3种基础方案图例之B

    多管共架侧向+纵向抗震3种基础方案图例之C

【天兆抗震支架产品】

天兆抗震支架产品图册

天兆抗震支架产品图册

天兆抗震支架产品图册

天兆抗震支架产品图册

天兆抗震支架产品图册

天兆抗震支架产品图册

©天兆抗震支架(www.tianzhaokzzj.com), All rights reserved

Copyright© 2025   冀ICP备2024088373号-2 sitemap