天兆抗震支架
  • 1
  • 2
  • 抗震支架应用建筑工地
  • 抗震支架应用行业
信息中心
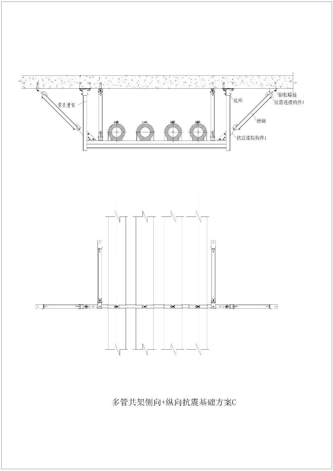
    【多管共架侧向+纵向抗震3种施工基础方案 施工图例】多管共架侧向+纵向抗震3种施工基础方案 施工图例

    多管共架侧向+纵向抗震3种施工基础方案-施工图例1_r.jpg

    多管共架侧向+纵向抗震3种施工基础方案-施工图例2_r.jpg

    多管共架侧向+纵向抗震3种施工基础方案-施工图例_3_r.jpg

【天兆抗震支架产品】

天兆抗震支架产品图册

天兆抗震支架产品图册

天兆抗震支架产品图册

天兆抗震支架产品图册

天兆抗震支架产品图册

天兆抗震支架产品图册

©天兆抗震支架(www.tianzhaokzzj.com), All rights reserved

Copyright© 2025   冀ICP备2024088373号-2 sitemap